IMP pumps

Tvornica

Opis

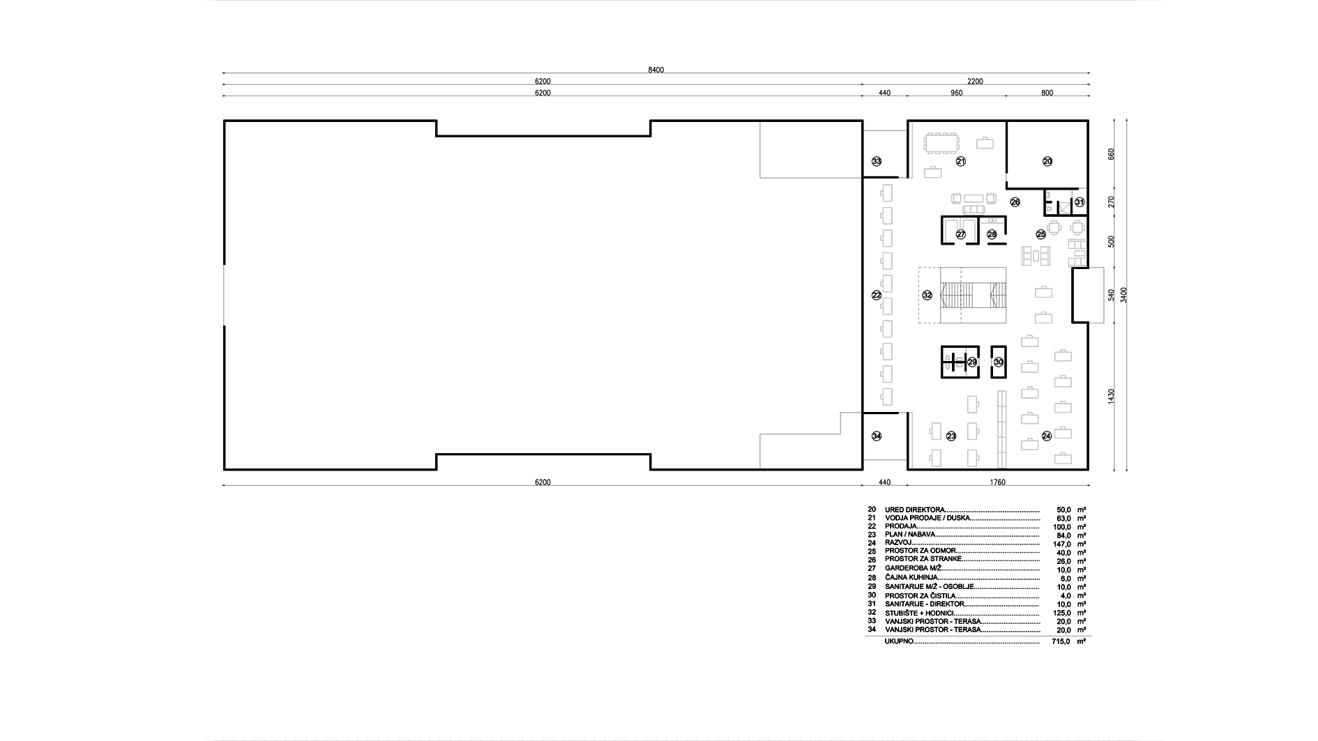
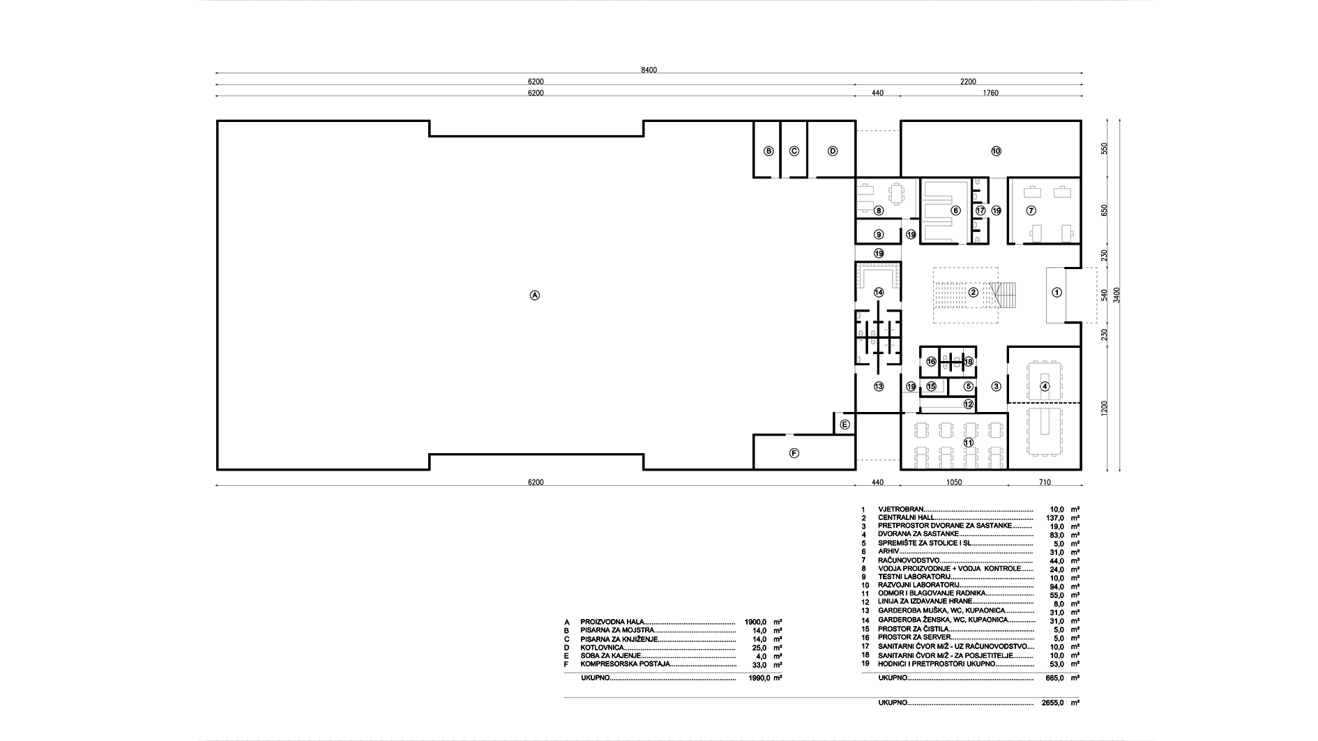
Tvornica IMP Pumps nalazi se u poslovnoj zoni Komenda u Ljubljani (Slovenija). Unutar strogo definiranog rastera poslovnih i proizvodnih objekata, smještena je zgrada IMP Pumps unutar koje se nalazi proizvodni, upravni i razvojni dio.

Koncept

  • Uklapanje zgrade u okoliš crnogoričnih šuma
  • Simulacija vertikala drveća uz ritam visina
  • Staklo-refleksija šume