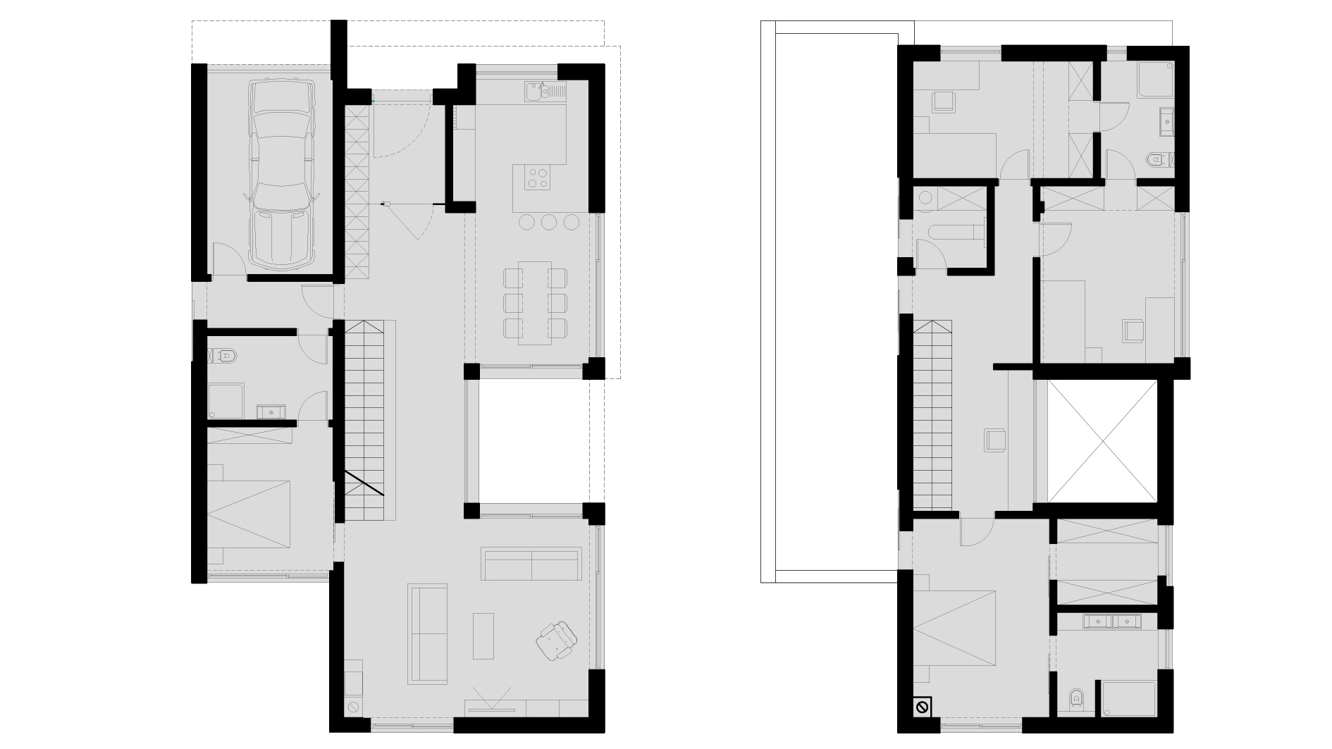
House B1

Atrijska kuća

Opis

Kuća je smještena u ekskluzivnom naselju Zadra, Diklu.Kuća je projektirana za jednu obitelj, predviđena modernom načinu življenja. Izgrađena u prenapučenom, apartmaniziranom okruženju te se morala orjentirati sama prema sebi.

Koncept

  • Orjentacija kuće / osnovni problem
  • Odgovor na to / atrij
  • Otvaranje kuće na istok / u nadi da će ostati neizgrađena