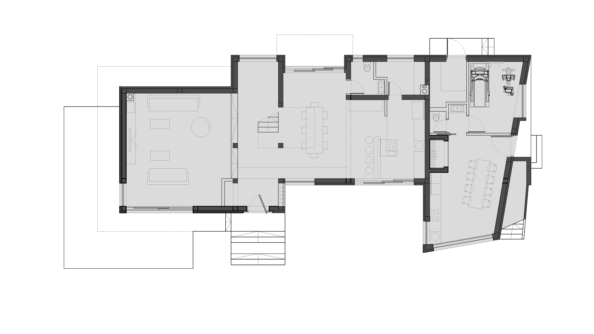
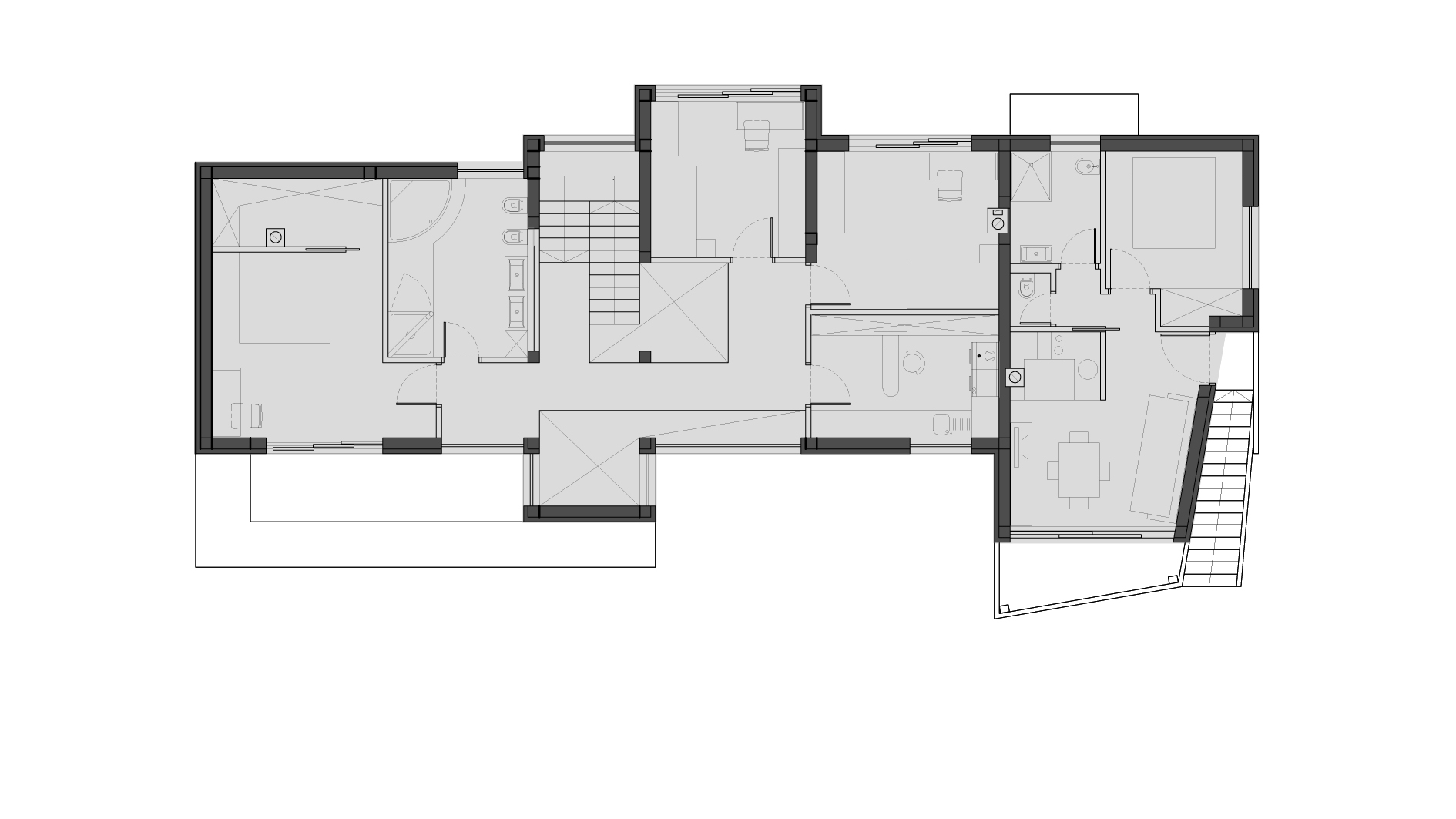
House B0

Spoj starog i novog

Opis

Kuća je smještena u arhaičnom naselju Arbanasima, danas sastavni dio grada Zadra. Pri projektiranju se pokušao prikazati izgubljeni duh Arbanasa u današnjem modernom vremena. Kuća je višestambena.

Koncept

  • Spoj starog i novog
  • Materijali drvo, aluminij, kamen
  • Hrabar odabir boja