House F0

Kontejnerašica

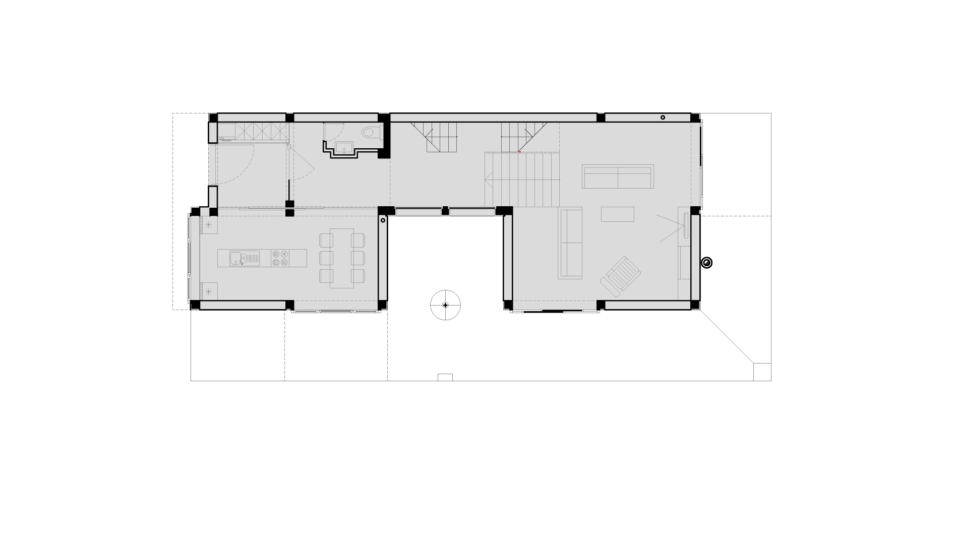
Opis

Smještena u rubnom dijelu grada Zadra,gotovo ruralnom,nedvojbeno odskače svojom arhitekturom kao pokušajem negiranja okolnog arhitektonskog izričaja. Projekt je prilagođen obliku parcele i pokušajem izvedbe unutarnjeg dvorišta kao ideje introvertiranosti finskih kuća.

Koncept

  • Kuća iz serije „kontejnerašica“
  • Ideja upuštenog dnevnog boravka – otvoreno, ali ipak skriveno – intimno
  • Poluetaže